Project Spotlight – Whalepond New Construction

The Whalepond Rd New Build was a standout from the very beginning. Ambitious in both vision and execution, this custom home was designed to deliver the ultimate in comfort, style, and functionality. It pushes boundaries with its layout, amenities, and attention to detail.
This multi-level residence spans two floors plus a fully enclosed, functional basement that’s anything but ordinary.

Step outside, and the scale of the project truly comes to life. The backyard is a full-scale private oasis, designed for resort-style living at home.
Inside the home, high-end living continues with carefully integrated features that elevate both function and comfort.
Architectural details were equally prioritized. You will find custom millwork throughout the home, including a bespoke built-in banquette that blends style with usability.
Achieving this level of design and amenity required thoughtful planning, bold design choices, and a strategic approval process.
We’ll walk through:
- The Approval Process – Including a year-long effort to secure both DOB and zoning board approvals due to lot coverage challenges tied to the cabana, pool, and tennis court.
- Project Timeline – A one-and-a-half-year construction schedule that stayed impressively on track from the moment approvals were finalized. Through detailed planning, consistent communication, and proactive coordination across trades and vendors, we were able to keep momentum steady, delivering a complex, ground-up build within the original timeline.
- Design Phase – Mood boards and rendering were key to our process, helping to visualize and refine the design direction at every stage. These boards and drawing brought together a vibrant, luxe palette and rich materials, ensuring each space felt cohesive, intentional, and tailored to the client’s vision—from bold kitchen finishes to the elegant, modern details throughout the bathrooms and living areas.
- Material Selection & Pricing Strategy –Where we splurged (like marble countertops) and where we saved (such as lighting and mosaic bathroom finishes) to strike a thoughtful balance
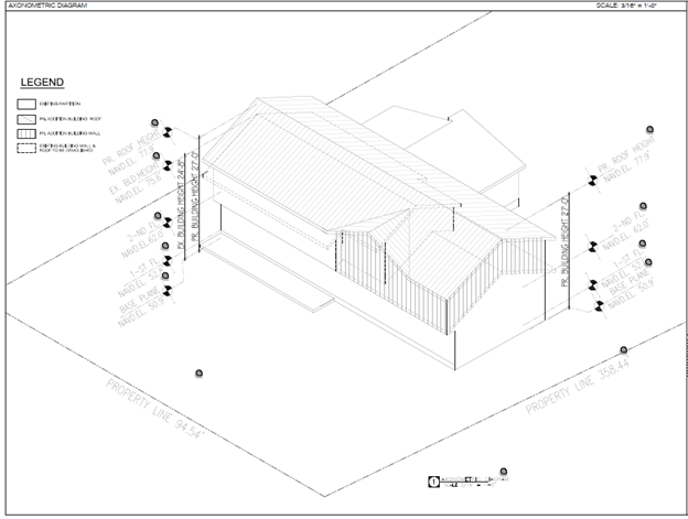
The Approval Process: Navigating Zoning and DOB

Before a single shovel hit the ground at Whalepond Rd, the project faced a significant and complex hurdle…A dual-layered approval process that required patience, expertise, and strategy.
Because this property was designed with luxury amenities that pushed past local lot coverage limits, including a cabana, full-size tennis court, and expansive pool, we needed more than just standard building permits. The first step was securing a zoning variance to legally allow the added structures and exceedances.
A variance is a request to deviate from current zoning requirements. If granted, it permits the owner to use the la
nd in a manner not otherwise permitted by the zoning ordinance. It is not a change in the zoning law. Instead, it is a specific waiver of requirements of the zoning ordinance.
This process required us to present the full scope of the project to the local zoning board, including rationale, impact studies, and architectural intent. Gaining this approval was a prerequisite before we could even approach the Department of Buildings.
.png)
Once the variance was approved, our expeditor stepped in to coordinate Step 2: Managing the DOB Submission. This included navigating the intricate codes and ensuring every document met city requirements.
From the initial planning to final sign-off, the approval phase alone spanned nearly a full year. This timeline reflects both the size of the home and the scope of its exterior features. It was a front-loaded investment of time that ultimately paid off by setting the foundation for a smooth, uninterrupted build.
Project Timeline
With all approvals in hand, construction officially kicked off, and we hit the ground running. The build was slated for a one and a half-year timeline, and despite the scale and detail involved, we remained on schedule from start to finish.
Once we broke ground, the site progressed steadily through each major milestone: foundation, framing, plumbing, electrical, mechanicals, interior finishes, and final detailing. Staying on track requires tight project management, coordination between our design and build teams, proactive procurement of materials, and a detailed scope of work outline to avoid overlap or bottlenecks.

Given the custom nature of this home (from its footprint to its finishes) delays could have easily crept in. But by planning ahead during pre-construction and maintaining constant communication with trades, vendors, and inspectors, we kept the project moving at pace.
.png)
The Result?
A seamless transition from concept to completion, delivered exactly as promised. For a home of this size and complexity, that’s a major win.
The Project Design Phase

The design of Whalepond Rd was all about creating a home that felt custom, vibrant, and undeniably luxurious. From the start, the vision leaned into high-end materials paired with playful touches of color and texture to give the interiors depth and warmth.
At Whalepond Rd (and like many of our projects at Star Renovations), mood boards played a central role in shaping the home’s design direction. From early concepts to final selections, they helped bring together finishes, fixtures, and color palettes in a way that felt cohesive and intentional across the entire build.
The mood board featured here offers a snapshot of the master suite bathroom selections. It showcases a thoughtful blend of brushed gold fixtures and accessories, geometric mosaic floors, a sculptural freestanding tub, and a sleek vanity, all working together to balance timeless elegance with a touch of modern flair.

Throughout the home, we introduced luxe finishes—from marble countertops and custom millwork in key spaces, to striking plumbing fixtures and statement lighting that carried the design story room to room. The main kitchen, which set the tone for much of the interior palette, showcased rich materials and thoughtfully selected hardware, establishing a cohesive foundation for the rest of the home. That cohesive feel extended through architectural details like the floating staircases, designed as sculptural features that blend function with clean, modern lines. We incorporated shiplap wood detailing in select spaces to add texture and warmth, bridging traditional charm with contemporary style. Underfoot, white oak herringbone flooring brings a timeless sophistication while reinforcing the home’s natural, elevated feel. Every element was considered not only for aesthetics, but also for how it contributed to the home’s overall flow and identity—resulting in a layered, refined space that feels curated yet comfortable at every turn
Every room tells a story—one that’s as functional as it is beautiful.
Pricing Strategy: Balancing Luxury with Smart Choices
At Whalepond Rd, our team worked closely with the client to prioritize where to invest in luxury finishes and where to make cost-conscious choices, striking a balance that delivered maximum impact without overextending the budget.
In key areas like the kitchen, we focused the spend where it would have the greatest visual and functional value. The marble island and custom cabinetry were a deliberate investment, creating a centerpiece that elevates the entire space. At the same time, we selected more economical hardware and plumbing fixtures, proving that high style doesn’t always require a high price tag at every turn.

Everywhere else in the home, we followed the same thoughtful approach. Bathrooms feature stylish mosaic floors and simple lighting that achieve the desired look without the premium cost of high-end materials in every element.

Throughout the process, our team’s role was to help navigate these decisions and guide the client in sticking to allowances based on the agreed scope of work. We understand that with a custom build of this scale, it’s easy for costs to escalate as new ideas or upgrades come into play. That’s why we focus on clear communication, detailed budgeting, and proactive planning from the outset, so clients can feel confident about where their investment is going at every stage.
By planning ahead and staying mindful of budget targets, we ensured the end result delivered on both aesthetic and practical goals—without unnecessary overspending. Our approach emphasizes value: knowing where it makes sense to invest in premium materials for maximum impact, and where smarter, cost-conscious options can achieve the desired look without compromising quality. The result is a home that feels elevated and intentional, while staying true to the client’s vision and financial comfort zone.
.png)
Star Material Spotlight:
Kitchen Stone: Calacatta Viola Polished Marble Slab
Bathroom Plumbing: Kohler Purist Collection
Doors & Windows: Andersen Company
Bringing It All Together
The Whalepond Rd New Construction project reflects what we strive for in every build: a custom home that balances bold design, smart planning, and thoughtful material choices.
Our team worked hand-in-hand with the client to make strategic decisions about where to invest in luxury and where to take a more practical approach.
Whether you’re just starting to imagine your dream home or you’re ready to take the next step, our team is here to help.
Contact us today at 718-521-2879 for a free inquiry and let’s explore how we can bring your new build project to life.
📧 info@starrenovationsny.com
.png)

