Spotlight Renovation: Lenox Hill Apartment Combination

Everything You Need To Know about Apartment Combinations In NYC
Are you looking to take on a big combination project in New York City? If the answers yes then you are in the right place. Star Renovations NY is proud to spotlight one of our most recent NYC Spotlight Renovations in Lenox Hill, NYC.
Combining spaces through an Apartment Combination project can transform your living experience in the city.

The project involved a complete overhaul of two apartments, (a two bed two bath and studio) with the client seeking a modern, sleek look to that combines these two units into one large luxury unit in prime Upper East Side!
This Apartment Combination project exemplifies modern design while respecting the unique character of each unit.
In this blog, we break down the entire experience from start to finish to give you an idea of what you can expect from your own Upper West Side remodeling project. We’ll cover:
- Table of Contents
The Approval Process: Navigating Co-op Boards and Combined Unit Challenges
Taking on a combination renovation in a New York City co-op means understanding that the journey starts well before construction begins. One of the most important phases is the approval process, and for this Lenox Hill project, the groundwork we laid in this stage set the tone for a successful transformation.
Understanding the nuances of an Apartment Combination is crucial for a seamless transition in the approval process.
We were tasked with merging a two-bedroom, two-bath apartment with an adjacent studio into one cohesive, luxury residence. This type of work typically requires a higher level of review and coordination with the building’s management. For co-ops, that means working closely with both the property manager and the board to ensure all standards, protocols, and building bylaws are respected.
In every Apartment Combination, the goal is to create an integrated living space that feels like a single home.

Every co-op has its own unique set of requirements, and in this instance, we encountered a multi-layered approval process. The board was diligent in protecting the interests of the building and its shareholders. Our team handled this through clear communication, thorough documentation, and a step-by-step approach that prioritized transparency with both the board and our client.
Our experience with Apartment Combination projects has provided us valuable insights into building regulations.
For this project, the building’s alteration agreement included a few extra provisions that aren’t always required but are becoming increasingly common across many Upper West Side and Upper East Side buildings.
Each Apartment Combination request undergoes a thorough vetting process to ensure compliance.
One such requirement was an Escrow Agreement, which set aside funds as a safeguard against any potential building damages or delays. This was in addition to a standard alteration deposit, which most buildings request.

Submission Checklist
To get approvals underway, we submitted the following materials as part of the alteration package:
- Contractor licenses and insurance certificates
- Contractor Indemnification Agreements
- Architectural and engineering plans
- Electrical load letters (to confirm system capacity)
- Neighbor notices (to inform adjacent residents of the upcoming work)
- Tenant Protection Plan or TPP
- Asbestos Testing
From the Client:
- Signed Escrow Agreement
- W9 form
- Alteration deposit (typically held by the building until project completion)
Related: NYC Building Alteration Agreement Process
By proactively managing these steps, we ensured a smooth start once construction was greenlit. While the process required time and diligence, it’s all part of delivering a successful renovation in one of the world’s most regulated (and rewarding) real estate markets.
Navigating this approval process is what helped us stay the course and maintain open communication with both the client and building management throughout.
The Apartment Combination renovations significantly enhance the value and appeal of co-op living.
Mid-Project Inspections: Managing with Building Oversight
Unlike many renovation projects across the city, co-op renovations can sometimes come with additional oversight during the construction phase, not just at the beginning or end. For this Lenox Hill combination, the building’s board included mid-project inspections as part of their alteration agreement. While this isn’t standard across all NYC buildings, it’s something we’re seeing more frequently, especially in co-ops with older infrastructure or recent updates to their internal policies.
These mid-project inspections are crucial for maintaining standards in any Apartment Combination process.
In this case, the board clearly outlined that “Insider Tip: If there are substantive changes made during construction that deviate from the approved plans, a Post Approval Amendment (PAA) is required to update the filings. For non-substantive changes, revised as-built drawings must be submitted by the Applicant of Record before the project can be signed off. Understanding these requirements upfront helps avoid unnecessary delays at the finish line. by both the building superintendent and the building’s architect.” These inspections were scheduled to take place at two key stages:
- After the installation of the waterproofing membrane, but before any sleeve installation
These stages are especially critical in an Apartment Combination to ensure standards and safety.
- After the replacement and relocation of the electrical panel, to ensure it met the specified design and compliance standards

To accommodate these inspections, our team was required to notify the building superintendent at least 48 hours in advance. This allowed time for coordination and helped ensure that everyone was aligned on expectations before moving forward.
While these added checkpoints introduced a bit of additional coordination, they also helped maintain a shared commitment to quality, safety, and compliance. In projects like these, communication and scheduling flexibility go a long way toward building trust with the building staff and ensuring smooth progressions from stage to stage.
The Design Phase
The design phase is among the lengthiest parts of many renovation projects, but it’s also one of the most rewarding. At Star Renovations NY, this phase often takes place within the comfort of our in-house showroom. As authorized dealers for many trusted brands—including Ferguson, Fabuwood, Tile Bar, Signature Hardware, Shades of Light, Phillip Jeffries, and more—we’re proud to create a one-stop experience that helps eliminate unnecessary back-and-forth across a city as fast-paced as New York.
.jpeg)
With our hassle-free design approach, we encourage clients to explore as many options as they’d like. And what better way to do that than by bringing the materials directly to them? We also recognize that some materials are best experienced in person and outside of our office setting. For example, tiles and natural stones—especially stone slabs used for countertops—are highly tactile, and the variations are endless. These selections often require a visit to a local stone yard or tile showroom, typically in Manhattan or Brooklyn, where clients can see the full scale, tone, and movement of each piece.
On the other hand, many key components like plumbing fixtures, paint colors, doors, and millwork—can confidently be selected within our office, thanks to our curated sample library and product partnerships. This balance allows us to streamline the process where possible, while still providing flexibility for moments when a hands-on showroom experience makes all the difference.
For this Lenox Hill project, the design process moved swiftly. The clients came to us with a clear color palette in mind, which gave our design team a strong direction right from the start. From finishes to fixtures, we were able to maintain a cohesive visual language across the entire space and make timely selections that reflected their taste and the home’s overall flow.

While the design phase is highly creative, it also plays a critical logistical role. During this period, our team simultaneously works on submitting finalized plans, especially when filings with the Department of Buildings (DOB) are required. By advancing these submissions early, we’re able to begin securing long-lead materials immediately after approvals are granted. This forward-thinking strategy helps minimize downtime and ensures a smoother transition into construction once the green light is received.

Design Tip: Maximize Every Inch
We also integrated additional closet space near the primary bathroom in the laundry room, creating a practical flow that supports everyday living. These types of thoughtful adjustments are what elevate a renovation from functional to exceptional. Combined with tailored finishes and materials that reflect the sophisticated, modern sensibilities of NYC interiors, a well-designed space should not only look beautiful—but work beautifully, too. In New York City, square footage is always at a premium—so thoughtful layouts and smart storage solutions are key to successful design. By transforming the old studio foyer into a walk-in closet, we added meaningful storage in an area that might otherwise have been wasted in the new Master Suite.
Smart storage solutions are key to maximizing space in any Apartment Combination.

Local Challenges
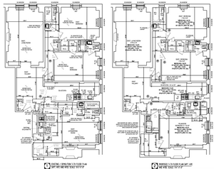
One of the most important steps in any NYC apartment combination is determining how the two spaces will connect. Especially when working within the constraints of a building’s structural and mechanical systems. In New York City apartments, load-bearing walls typically cannot be removed, so we’re always working with the existing framework to find the most efficient, code-compliant solution. That’s where thoughtful planning and layout strategy become essential.
.png)
The successful completion of an Apartment Combination requires careful planning and execution.
For this Lenox Hill project, we were working with a horizontal combination, connecting a two-bedroom, two-bath apartment with an adjacent studio. The goal was to create a seamless, single-residence feel that didn’t give away the home’s dual-unit origin. To accomplish this, we focused on the transitional area between the two spaces.
We ultimately decided to remove the pantry closet from the studio and demolish the foyer of the two-bedroom unit, creating a shared entry zone that allowed for smooth circulation and continuity. By closing off the studio’s original entrance and repurposing part of that footprint into a walk-in closet, we not only maintained privacy and flow but also maximized function.
Behind the walls, this phase brought another set of logistical challenges. Since each unit had its own independent electrical panel, we needed to relocate both panels into new centralized locations and reconfigure the wiring to serve the newly combined layout. Our electricians carefully mapped out the system to ensure everything functioned as one integrated residence.
Plumbing adjustments were also required, especially as the new layout shifted bathroom placements and added laundry function. These systems were strategically rerouted, and all work was completed in compliance with DOB regulations and the building’s oversight.
In any Apartment Combination, plumbing adjustments are often required to accommodate new layouts.
Every NYC renovation comes with unique challenges—but through thoughtful planning, collaborative coordination, and a clear understanding of building logistics, we’re able to turn those challenges into opportunities for smarter, more beautiful living spaces.
Through thoughtful planning, we can turn challenges into opportunities in an Apartment Combination.
_VS.jpg)
Final Touches
The final touches in an Apartment Combination are what bring the project to completion.
As we approached the final phase of this Lenox Hill renovation, our focus shifted to closing out the project with precision and care. One of the key responsibilities at this stage involves scheduling and passing all required final inspections, including plumbing and electrical sign-offs from the Department of Buildings (DOB). These inspections confirm that all work has been completed to code and in accordance with the approved plans.

Passing final inspections is crucial for the success of an Apartment Combination renovation.
Today, licensed professionals and property owners must use DOB NOW: Inspections to request development inspections in regulated areas such as:
- Electrical
- Plumbing
- Construction
- Boilers
- Elevators
- Gas Equipment
- High Rise Initiative
Our team is fully versed in navigating this system, coordinating directly with the required professionals to ensure all inspection requests are filed properly and on time. Once these inspections are passed, we proceed with the official closing of permits and issue a completion certificate from Star Renovations NY (an essential final deliverable for every client’s records).
For co-op buildings like this one, there’s typically one more step: ensuring our clients meet the building’s requirements to recover their alteration deposit. This can include submitting the DOB’s final inspection approvals, contractor sign-offs, and evidence that permits have been properly closed. It’s a standard part of co-op renovations in NYC, but not commonly required for single-family homes, just one of the many nuances we navigate on behalf of our clients.
Ensuring compliance in an Apartment Combination can be complex, but it’s essential for success.

Understanding the requirements for an Apartment Combination is key to avoiding delays.
In the end, final touches aren’t just about punch lists and finishes, they’re about clear communication, accurate documentation, and ensuring our clients can confidently close out their project. It’s the kind of detail-focused service we’re proud to provide, from day one to completion and something you as a client should look for when completing a home renovation project on any scale!
Clear communication is essential throughout the Apartment Combination process.
Related: How to Vet your NYC Contractor
Bringing It All Together
Renovating in New York City (especially when combining co-op units) is no small feat. From navigating board approvals and DOB filings to designing with intention and executing with precision, every phase requires experience, foresight, and clear communication. At Star Renovations NY, we take pride in guiding our clients through each step with transparency and care, ensuring the finished space not only meets their vision but exceeds expectations.

Combining units through an Apartment Combination project requires expertise and attention to detail.
This Lenox Hill project is a testament to what thoughtful planning, skilled craftsmanship, and collaborative design can achieve. If you’re thinking about combining units, remodeling your current apartment, or starting fresh in a new space, we’re here to help you explore what’s possible.
If you’re considering an Apartment Combination, we can guide you through the process.
Ready to begin your hassle free transformation? Reach out to schedule a consultation with our team. Whether you’re just starting to gather ideas or already have a vision in mind, we’d love to help you bring it to life with creativity, clarity, and care.
Reach out to discuss your Apartment Combination ideas and start the transformation.


.png)